Page suivante
Page précédente
Osny (95520)

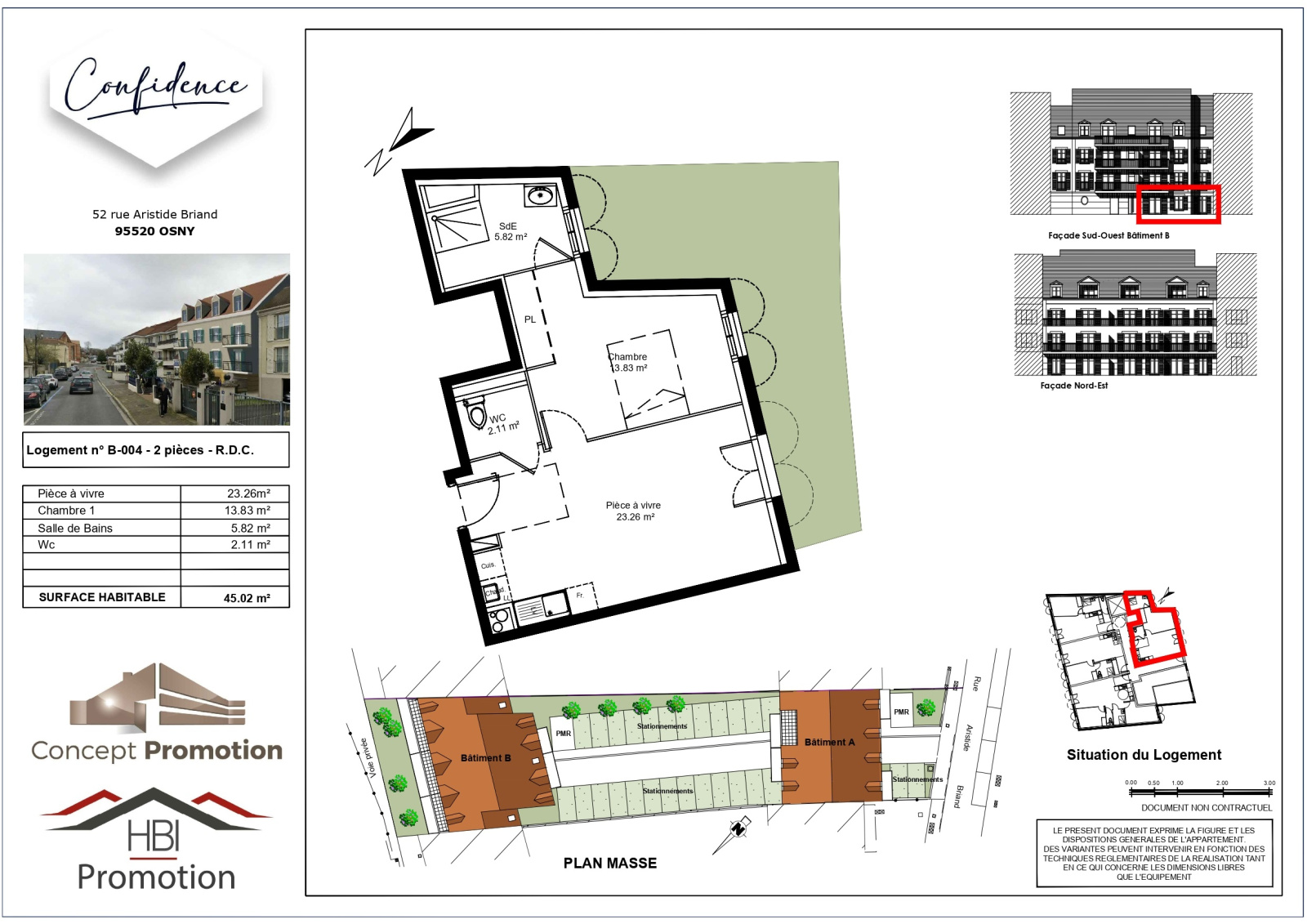
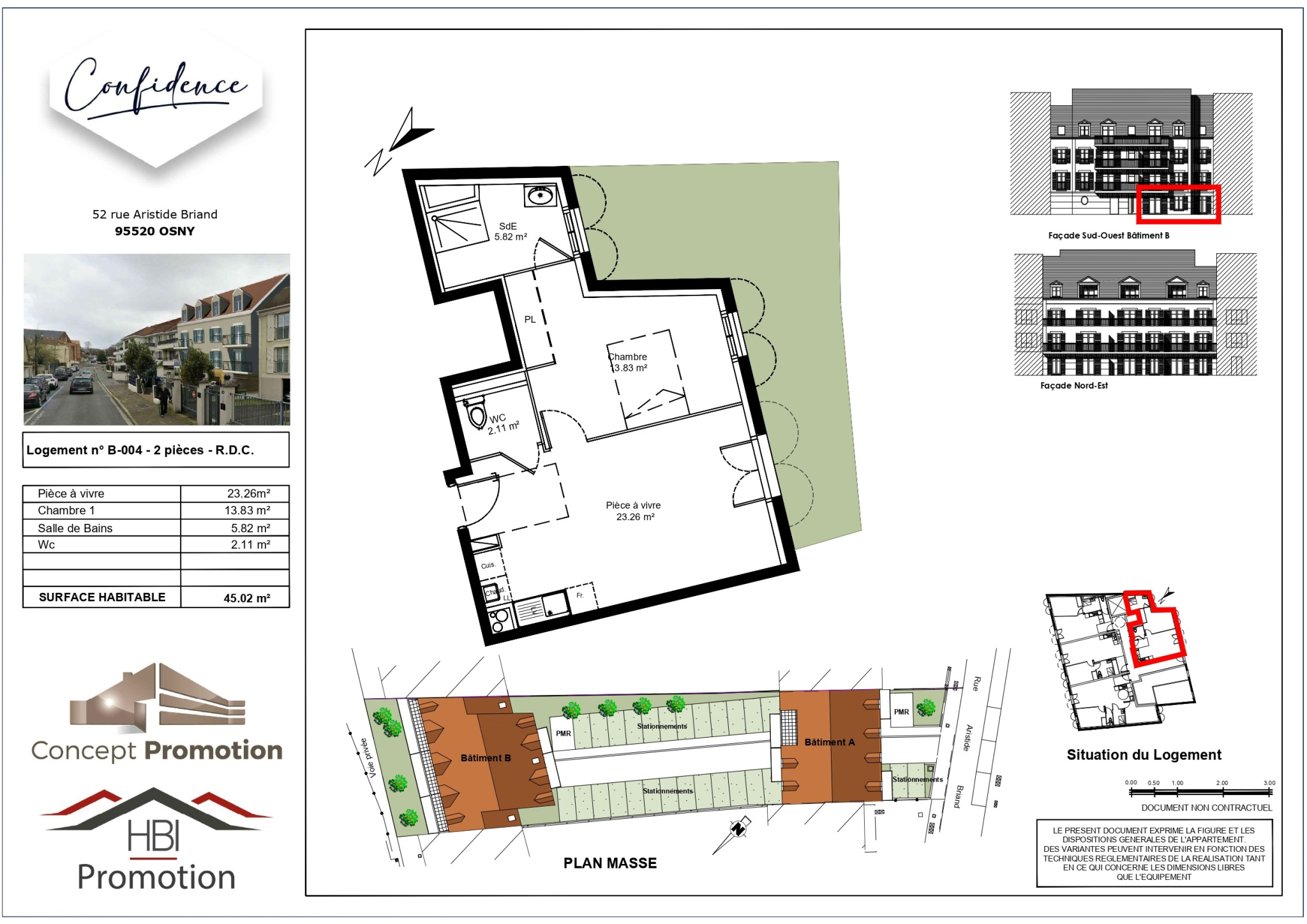
Appartement 2 pièce(s) 1 chambre(s) 45.02 m²

1
1
795 € CC*
Réf 70542

Résidence neuve située à 10 minutes à pied de la gare - Disponible - 2 pièces de 45.02 m² situé en rez-de-chaussée (pas de jardin). Séjour et cuisine aménagée équipée ouverte, 1 chambre avec placard, salle d'eau, wc. Parking privatif en exterieur. Chaudière individuelle gaz pour le chauffage et l'eau chaude. Contactez moi au 07.81.75.75.20.

Loyer mensuel 795 € charges comprises (dont 65 € de provisions pour charges soumises à régularisation annuelle)

Honoraires à la charge du locataire 585 € (dont 135 € d'honoraires d'état des lieux)


Les informations sur les risques auxquels ce bien est exposé sont disponibles sur le site Géorisques

Bilan énergétique

Diagnostics énergetiques
Consommation énergétique
A B C D E F G
Emission de gaz à effet de serre
A B C D E F G

Montant estimé des dépenses annuelles d'énergie pour un usage standard est compris entre 620 € et 900 € . Prix moyens des énergies indexés sur les années 2021, 2022 et 2023 (abonnements compris).

A propos de ce bien Caractéristiques de ce bien
  • Surface 45,02 m²
  • carrez 45,02 m²
  • 1 chambre(s)
  • 1 salle(s) d'eau
  • construit en 2025
  • cuisine américaine (équipée)
  • Chauffage individuel : chaudière (gaz)
  • 1 parking(s)
  • 1 niveau(x)
  • 3 étage(s)
  • visiophone

Composition

Composition de ce bien

Rez-de-chaussée

  • Séjour/Cuisine 23.26 m²
  • chambre 13.83 m²
  • Salle d'eau 5.82 m²
  • WC 2.11 m²
  • parking

Info copro

Copropriété
  • Copropriété Oui

Financier

Informations financières
Loyer CC* / mois 795 €
Honoraires TTC charge locataire 585 €
Dont état des lieux 135 €
Dépôt de garantie TTC 730 €
Charges locatives (Previsionnelles mensuelles les avec regularisation annuelle) 65 €

Autour du bien

Découvrez le quartier
Tawer Immobilier Agence

* CC : Charges comprises